WAKE-UP CALL: Writers, artists and faculty members opposing the N.Y.U. 2031 mega-development plan have joined together to contribute to a new “collection of pieces in protest” titled, “While We Were Sleeping: NYU and the Destruction of New York.” Among the contributors are the likes of David Amram, Roberta Brandes Gratz, E.L. Doctorow, Jules Feiffer, Mindy Thompson Fullilove, Joel Grey, John Guare, Jessica Hagedorn, Nat Hentoff, Philip Levine, Mark Crispin Miller, Eileen Myles, Sarah Schulman and Lynne Tilman. It’s published by McNally Jackson Books, and we mean really published right at the Nolita store, at 52 Prince St. between Mulberry and Lafayette. The store has a special machine that creates a book for you as you wait; there are only something like 80 of these around the country, according to Linda Gross, a P.R. rep for N.Y.U. FASP (Faculty Against the Sexton Plan). The book can be purchased at the store for $10 or online from N.Y.U. FASP, which will send one for a minimum contribution of $10, plus $8 shipping. That’s certainly a high shipping charge, but all the proceeds go toward a cause: N.Y.U. FASP and its lawsuit against the university’s development plan.

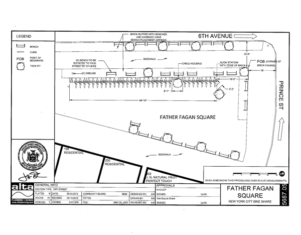
FAGAN SQUARE BIKE-SHARE FLAP: People have had their quibbles about some of the planned sites for the city’s new bike-share program, which will be funded by CitiBank. But in Soho, the Department of Transportation’s plan to install a docking station for 30 bikes in Father Fagan Square, at Prince St. and Sixth Ave., recently drew howls of protest from leading Community Board 2 members, as well as from St. Anthony’s Church. Sean Sweeney, director of the Soho Alliance, fired off an e-mail blast fuming, “D.O.T. & CitiBank plan to desecrate a memorial site. Park dedicated to four local heroes to become bike park for tourists!” The small park is dedicated to Father Richard Fagan, a St. Anthony’s pastor who in 1938 escaped a raging fire in the rectory only to run back in to rescue two other priests, sacrificing his own life. The park also has three Callery pear trees planted in honor of three firemen, Captain John Drennan and Firefighters James Young and Christopher Siedenburg, who died battling a Soho blaze in 1994. Sweeney noted that the C.B. 2 district — bounded by W. 14th and Houston Sts., Bowery/Fourth Ave. and the Hudson River — ranks 59th out of the city’s 61 community boards in terms of the amount of green space, and that thus even its smallest parks are fiercely guarded resources. Board 2 had explicitly asked D.O.T. not to site the bike-share stations in any of the district’s parks, small or large. Ironically, Sweeney noted, no large city parks, such as Central Park, Prospect Park, Madison Square Park or Fort Greene Park, will be getting bike-share stations. “I guess the memory of our dead heroes is less important to D.O.T. than its overzealous attempt to have the streets of the greatest city in the world resemble those of Ho Chi Minh City,” the Soho activist quipped. According to Sweeney, Father Joseph Lorenzo, St. Anthony’s pastor, said the site would be “cheapened by placing a bike rental unit there.” Last Friday, C.B. 2’s Tobi Bergman and District Manager Bob Gormley (Sweeney was out of town) met with D.O.T. Manhattan Commissioner Margaret Forgione to try to work out a solution. The upshot was that D.O.T. has agreed not to dock the bikes in Father Fagan Square, and is now considering an alternative site, either on Houston St. between Sixth Ave. and MacDougal St. or along MacDougal St. Bike-share has been delayed until next month or maybe September due to glitches with its software.
DON’T ASK ABOUT VITO: Congressmember Nydia Velazquez is feeling good after her resounding victory over upstart challenger Councilmember Erik Martin Dilan in last month’s Seventh District Democratic primary election. She took 58 percent of the vote to his 31 percent. Meanwhile, George Martinez, an Occupy Wall Street candidate from the Bronx, garnered 2.7 percent. Dilan and his patron, Assemblymember Vito Lopez, the Brooklyn Democratic Party leader, apparently thought they had a chance to unseat Velazquez due to redistricting. But winning big in the Lower East Side portion of her district, among other areas, helped Velazquez cruise to the win. Just one thing — don’t make the mistake we did and ask her about the ethics-challenged Lopez and why he was gunning for her. “This is the problem — people keep bringing his name up,” she told us. “The race wasn’t about a candidate running against me. There basically was a proxy for Vito Lopez. It seems he thought it was the time — 30 percent of the district was new. … I don’t want to spend more time discussing Vito Lopez.” The ranking Democrat on the House’s Small Business Committee said what she wants to do is focus on jobs creation, but that she’s disgusted by the Republicans in Washington, who have been frustrating all efforts on this front. When we spoke to her recently it was right before the House Republicans were about to vote to nix the Affordable Healthcare Act. “They know that it’s going nowhere because the Senate won’t repeal it,” a frustrated Velazquez said. “It’s a way to energize their base. It’s really sad, when so many families are suffering — and here we are doing something that isn’t going to create a single job.” The congressmember said she’d like to see more investment in infrastructure and education that will feed local small business and manufacturing, such as at the booming Brooklyn Navy Yards. “Let’s reward keeping jobs here and not ship overseas — how to incentivize,” she stressed. The Republicans cannot continue to be “The Party of No” and keep frustrating all the president’s efforts to generate jobs, she said. “Show me one bill!” to create jobs, she said angrily. Speaking of “overseas,” she added of Republican presidential candidate Mitt Romney, “He will have to release his income tax returns and explain why he has put his money in shelters overseas — show that he does pay taxes. The pressure is going to be there for Mitt Romney to come clean.”
BACK IN THE NEW YORK GROOVE: He just can’t stay away from Loisaida. Antonio Garcia a.k.a. “Chico” of graffiti mural fame told us last year that he was really hoping just to settle down with his family in Tampa and focus on his new job painting detail work on cars and motorcycles. But commissions for East Village murals just keep pouring in and the annual HOWL! Festival keeps calling. He came up for HOWL! last month and painted a few canvases for its Art Around the Park, including one of Jean-Michel Basquiat “smoking weed,” as Chico put it, since, well, that’s how he remembered him. The new owner of the former Nice Guy Eddie’s, who Chico said is named Bob, recently commissioned him to do a fresh Kiss band mural on the place’s exterior along Houston St. All Chico knows about the new restaurant is that it will be “very clean,” which is always a good thing.
LOTTA LIQUOR ON LAFAYETTE: Getting back to Nolita, Osteria Morini’s effort to get a liquor license for its expansion into an adjoining building on Lafayette St. was one of the hottest issues on the agenda recently at Community Board 2. Many neighbors turned out at C.B. 2 two months ago to oppose the application, saying the area around Petrosino Square has become saturated with bars and restaurants — and that enough is enough. But other neighbors said Osteria Morini isn’t just a nightspot but also a family restaurant and that if anyplace should be allowed to expand, this is the one. However, we recently got word from Georgette Fleischer of Friends of Petrosino Square that the State Liquor Authority has denied the restaurant’s application. “As it stands, on any given night, there are 544 persons eating and drinking on that short block, and that doesn’t include additional eaters and drinkers at the three sidewalk cafes,” Fleischer told us. “The community feels that Morini’s ambitions, if granted, would turn that block of Lafayette between Spring and Kenmare Sts., the eastern edge of Soho, which includes three buildings zoned for joint living and work quarters for artists, into a Restaurant Row. Eventually, the S.L.A. decided that we are correct: Since 218 and 216 Lafayette St. are separate buildings, with different owners and separate leases, the applicants could not simply ‘alter’ the license at one address in order to initiate liquor service at a second address.”
RIDING IN STYLE: In other bike news, we’re glad to see that all that work along the edges of the Allen St. Mall south of Delancey St. that put the bike lanes there off-limits has resulted in something — namely, new protected bike lanes. These are among the classier protected lanes we’ve seen, as they’re incorporated into the mall behind a chain-and-post fence. However, we’re skeptical the signs warning pedestrians to keep off these spanking new bike paths will have much impact.





































